Заказчык па будаўніцтве аб'екта -
Дзяржаўнае прадпрыемства
Дзяржаўнае прадпрыемства
«УКБ Савецкага раёна г. Мінска»
Генеральная праектная арганізацыя -
ТАА "Белтэхнагляд"
Генеральная падрадная арганізацыя–ААТ " Будтрэст №4»
Праектная дэкларацыя ад 09.07.2024
Дапаўненні і змяненні ад 08.10.2024 да праектнай дэкларацыі ад 09.07.2024 № 52 (3936)
Адкрыць
Змяненні ад 29.10.2024 да праектнай дэкларацыі ад 09.07.2024 № 52 (3936)
Адкрыць
Змяненні ад 15.11.2024 у праектную дэкларацыю ад 09.07.2024 №52 (3936)
Адкрыць
Праектная дэкларацыя ад 10.01.2025 №2 (3987)
Адкрыць
Змяненні (дапаўненні) ад 29.01.2024 да праектнай дэкларацыі ад 10.01.2025 № 2 (3987)
Адкрыць
Змяненні (дапаўненні) ад 15.04.2025 да праектнай дэкларацыі ад 09.07.2024 № 52 (3936)
Адкрыць
Змяненні (дапаўненні) ад 13.05.2025 да праектнай дэкларацыі ад 09.07.2024 № 52 (3936)
Адкрыць
Змяненні (дапаўненні) ад 15.07.2025 да праектнай дэкларацыі ад 09.07.2024 № 52 (3936)
Адкрыць
Змяненні (дапаўненні) ад 17.09.2025 да праектнай дэкларацыі ад 09.07.2024 № 52 (3936)
Адкрыць
Змяненні (дапаўненні) ад 03.10.2025 да праектнай дэкларацыі ад 09.07.2024 № 52 (3936)
Адкрыць
Змяненні (дапаўненні) ад 17.10.2025 да праектнай дэкларацыі ад 10.01.2025 № 2 (3987)
Адкрыць
Змяненні (дапаўненні) ад 05.11.2025 да праектнай дэкларацыі ад 09.07.2024 № 52 (3936)
ПРАПАНОВЫ ПА РЭАЛІЗАЦЫІ КВАТЭР
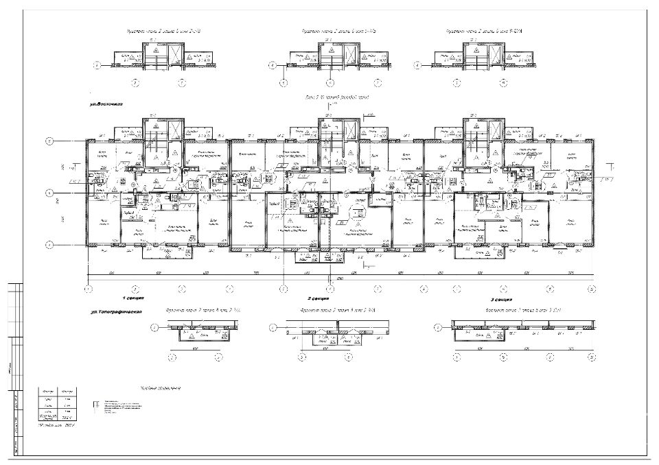
Дом
- 3 секцыі
- 10 паверхаў
- Агульная плошча: 6 391,08м²
- 90кватэр
- 27 - 1 пакаёвых кватэр,
36 - 2 пакаёвых кватэр,
27 - 3 пакаёвых кватэр.
Характарыстыкі дома
Шматкватэрны жылы дом, размешчаны ў мяжы вул. Усходняй,зав. 2-і тапаграфічны,
вул. Тапаграфічнай у г.Мінску, запраектаваны трохсекцыйным, 10-павярховым, з тэхпадполлем, з убудаванымі памяшканнямі на 1 паверсе, тэхнічным гарышчам, плоскім рулонным дахам з унутраным вадасцёкам. Уваходы ў жылую частку і ўбудаваныя памяшканні арганізаваны з прыладай крылаў, абсталяваных пандусамі.
Жылы дом запраектаваны ў маналітным каркасе з плоскімі перакрыццямі. Вонкавыя сцены надземнай часткі - з блокаў ячэістага бетону з суцэльным уцяпленнем минераловатными плітамі; унутраныя сцены - маналітныя жалезабетонныя; перагародкі - з цэглы керамічнага.
У аб'екце прадугледжана ўстройства 92 парковачных машына-месцаў, у тым ліку 3 для ФОЛ, а таксама велагараж на 15 месц і 9 велапарковак. Велапаркоўка запраектавана ў выглядзе прамавугольнага, лёгкага зборна-разборнага павільёна з металічным каркасам.
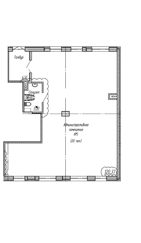
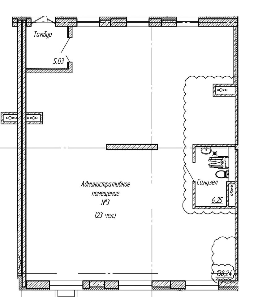
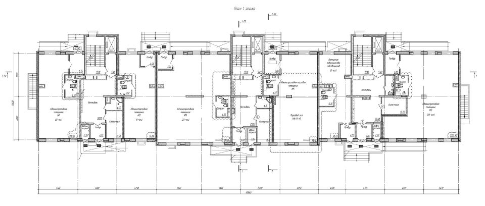
На 1 паверсе запраектаваны: 5 адміністрацыйных памяшканняў, памяшканне таварыства ўласнікаў, памяшканні ўваходных груп у секцыі жылой часткі, інвентарныя, калясачныя, каморы ўборачнага інвентара.
На тыпавым паверсе размешчаны 1-, 2-, 3-пакаёвыя кватэры, у склад якіх уваходзяць: жылыя пакоі, кухні, санвузлы, пярэднія пакоі, летнія памяшканні, гардэробы. У частцы кватэр адзін з жылых пакояў запраектаваны з кухонным абсталяваннем, частка аднапакаёвых кватэр запраектаваны як кватэры-студыі без падзелу ўнутранай прасторы перагародкамі (акрамя перагародак санвузлоў). Вышыня столяў - не менш за 2,65 м.
Аконныя (гаўбечныя) блокі: ПВХ профіль, запаўненне двухкамерныя шклопакеты.
Дзвярныя блокі (уваходныя) - металічныя.
Элементы шклення лоджый: профіль ПВХ, запаўненне шматслаёвым бяспечным шклом на вышыню не менш за 1,1 м ад падлогі.
Ўстаноўка сантэхнічных прыбораў - унітаз.
Унутранае аздабленне: падлогі - сцяжка, сцены і перагародкі - палепшаная тынкоўка, столь без аздаблення.
У кожнай секцыі жылога запраектаваны эвакуацыйная лесвічная клетка і ліфт (грузападымальнасць 630 кг).
Добраўпарадкаванне тэрыторыі: прылада тратуараў для пешаходаў з пакрыццём з дробнаразмерных бетонных пліт, праезды і паркоўкі з пакрыццём з цэментнабетоннай дробнаразмернай пліткі на бетоннай падставе, расстаноўка малых архітэктурных формаў (лавы, урны) і азеляненне прылеглай тэрыторыі, агароджа дзіцячай пляцоўкі , рух па якой ажыццяўляецца без выхаду на праезную частку.
вул. Тапаграфічнай у г.Мінску, запраектаваны трохсекцыйным, 10-павярховым, з тэхпадполлем, з убудаванымі памяшканнямі на 1 паверсе, тэхнічным гарышчам, плоскім рулонным дахам з унутраным вадасцёкам. Уваходы ў жылую частку і ўбудаваныя памяшканні арганізаваны з прыладай крылаў, абсталяваных пандусамі.
Жылы дом запраектаваны ў маналітным каркасе з плоскімі перакрыццямі. Вонкавыя сцены надземнай часткі - з блокаў ячэістага бетону з суцэльным уцяпленнем минераловатными плітамі; унутраныя сцены - маналітныя жалезабетонныя; перагародкі - з цэглы керамічнага.
У аб'екце прадугледжана ўстройства 92 парковачных машына-месцаў, у тым ліку 3 для ФОЛ, а таксама велагараж на 15 месц і 9 велапарковак. Велапаркоўка запраектавана ў выглядзе прамавугольнага, лёгкага зборна-разборнага павільёна з металічным каркасам.
На 1 паверсе запраектаваны: 5 адміністрацыйных памяшканняў, памяшканне таварыства ўласнікаў, памяшканні ўваходных груп у секцыі жылой часткі, інвентарныя, калясачныя, каморы ўборачнага інвентара.
На тыпавым паверсе размешчаны 1-, 2-, 3-пакаёвыя кватэры, у склад якіх уваходзяць: жылыя пакоі, кухні, санвузлы, пярэднія пакоі, летнія памяшканні, гардэробы. У частцы кватэр адзін з жылых пакояў запраектаваны з кухонным абсталяваннем, частка аднапакаёвых кватэр запраектаваны як кватэры-студыі без падзелу ўнутранай прасторы перагародкамі (акрамя перагародак санвузлоў). Вышыня столяў - не менш за 2,65 м.
Аконныя (гаўбечныя) блокі: ПВХ профіль, запаўненне двухкамерныя шклопакеты.
Дзвярныя блокі (уваходныя) - металічныя.
Элементы шклення лоджый: профіль ПВХ, запаўненне шматслаёвым бяспечным шклом на вышыню не менш за 1,1 м ад падлогі.
Ўстаноўка сантэхнічных прыбораў - унітаз.
Унутранае аздабленне: падлогі - сцяжка, сцены і перагародкі - палепшаная тынкоўка, столь без аздаблення.
У кожнай секцыі жылога запраектаваны эвакуацыйная лесвічная клетка і ліфт (грузападымальнасць 630 кг).
Добраўпарадкаванне тэрыторыі: прылада тратуараў для пешаходаў з пакрыццём з дробнаразмерных бетонных пліт, праезды і паркоўкі з пакрыццём з цэментнабетоннай дробнаразмернай пліткі на бетоннай падставе, расстаноўка малых архітэктурных формаў (лавы, урны) і азеляненне прылеглай тэрыторыі, агароджа дзіцячай пляцоўкі , рух па якой ажыццяўляецца без выхаду на праезную частку.
© 2025 Государственное предприятие «УКС Советского района г. Минска»