О ПРОЕКТЕ

Заказчик по строительству объекта
Государственное предприятие
«УКС Советского района г. Минска»

Генеральная проектная организация
ООО "ИнжСпецСтройПроект"

Генеральная подрядная организация
ОАО "Стройтрест № 1"

Объект строительства: "Многоквартирные жилые дома с объектами общественного назначения в границах улиц Волгоградской - Короленко - Ватутина - Кутузова. Многоквартирный жилой дом со встроенными торговыми и административными помещениями. Вторая очередь"


Расположен в Первомайском районе г. Минска, в границах улиц Волгоградской - Короленко - Ватутина - Кутузова.

Цель строительства: возведение двухсекционного шестнадцатиэтажного многоквартирного жилого дома.

Сведения об этапах и сроках строительства:
Начало строительства - 1 декабря 2025 года.

Предполагаемый срок завершения строительства и ввода в эксплуатацию- 1 квартал 2028 года.

Объявления и информация


Проектная декларация от 24.02.2026
Открыть

Изменения (дополнения) от 31.03.2026 в проектную декларацию от 24.02.2026
Открыть

Проектная декларация от 03.04.2026

Открыть


ПРЕДЛОЖЕНИЯ ПО РЕАЛИЗАЦИИ КВАРТИР

Общая характеристика объекта строительства

В объекте строительства предусмотрено строительство двухсекционного шестнадцатиэтажного жилого дома:

Дом
  • 2 секции
  • 16 этажей
  • Общая площадь жилых помещений: 9 623,78м²
  • 150 квартир
  • 30 - 1 комнатных квартир,
  • 90 - 2 комнатных квартир,
  • 30 - 3 комнатных квартир.

Характеристики

Объект расположен в границах улиц Волгоградской, – Короленко, – Ватутина и Кутузова в г. Минске и включает в себя возведение многоквартирного дома и многоуровневого наземного отдельно стоящего гаража-стоянки открытого типа.

Жилой дом в составе объекта запроектирован 16-этажным, 2-секционным, в монолитном каркасе с плоскими перекрытиями, с подвалом, встроенными торговыми и административными помещениями, техническим чердаком, плоской рулонной кровлей с организованным внутренним водостоком. Наружные стены надземной части – из керамзитобетонных блоков, из монолитного железобетона со сплошным утеплением минераловатными плитами. Внутренние стены – монолитные; перегородки – керамзитобетонные блоки.

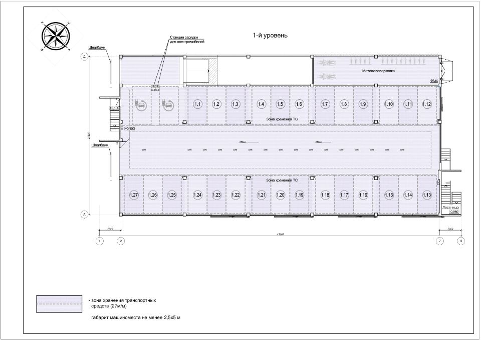
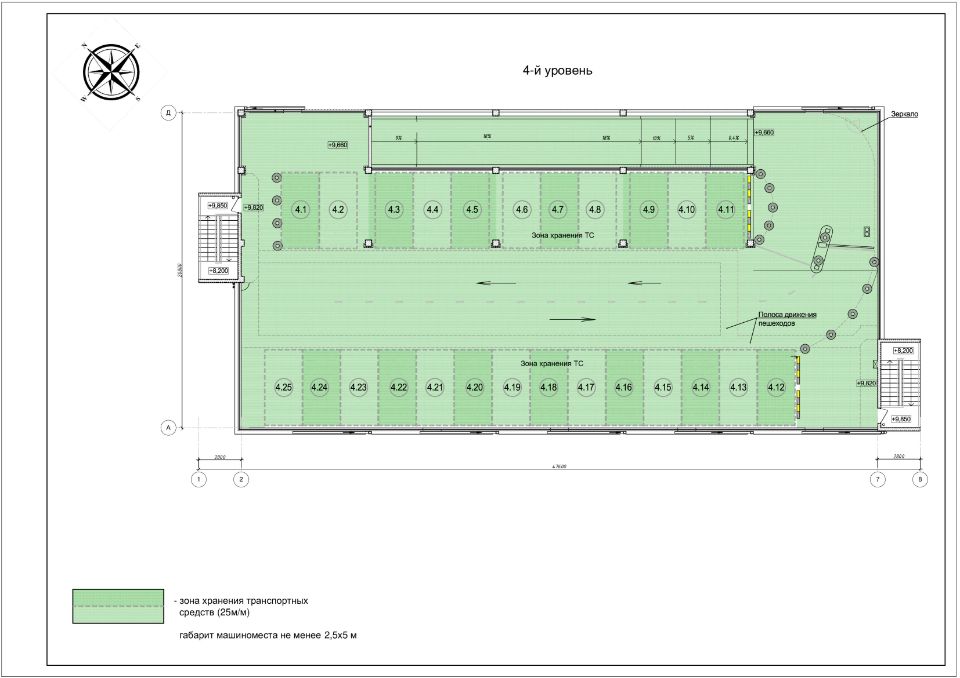
Сооружение гаража-стоянки запроектировано наземным, зданием прямоугольной формы. Для размещения мест для хранения автомобилей предусмотрено 4 яруса (4-й ярус на эксплуатируемой кровле). Гараж-стоянка рассчитан на 96 легковых автомобилей, не менее 15 единиц велосипедов и моторных транспортных средств. Проектом ограничивается высота транспортных средств, размещаемых на парковочных местах (хранение автомобилей) – не более 2,0 м. Размеры мест хранения автомобилей в помещениях паркинга не менее 11,5 м².

Подвал запроектирован с изолированными от жилой части наружными входами. В подвале расположены торговые помещения с санузлами и комнатами уборочного инвентаря, помещение товарищества собственников, технические помещения, и техническое подполье.

На 1 этаже запроектированы административные помещения с санузлами и комнатами уборочного инвентаря, помещения входных групп в секции жилого дома, кладовые уборочного инвентаря жилого дома.

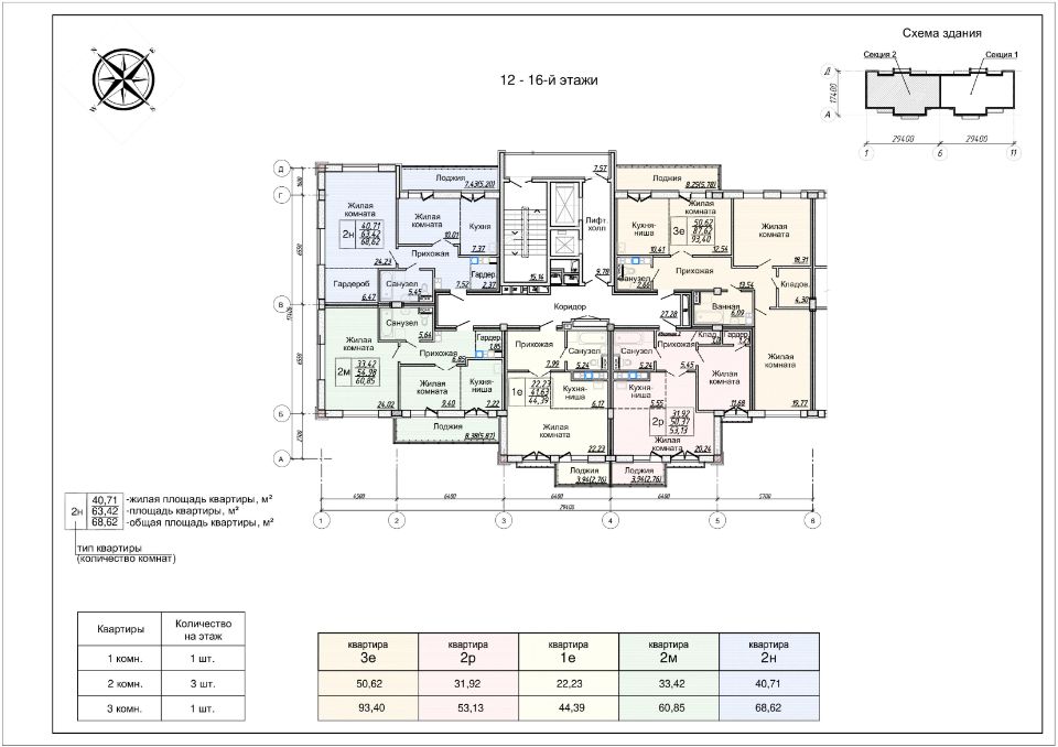
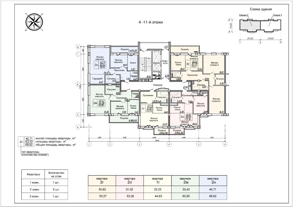
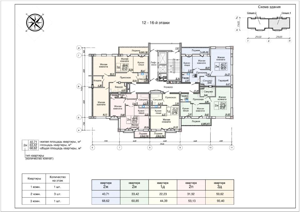
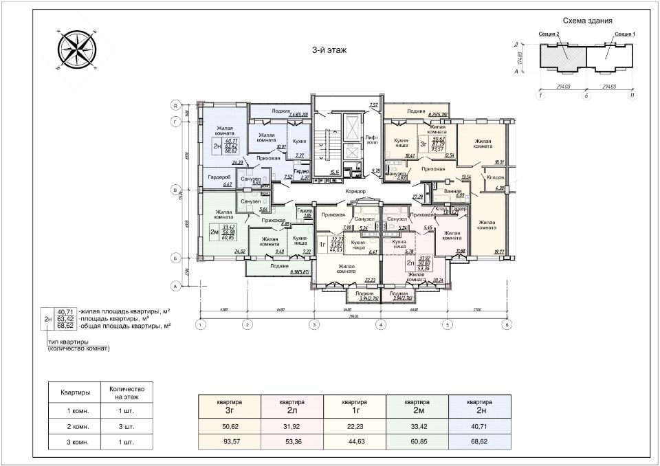
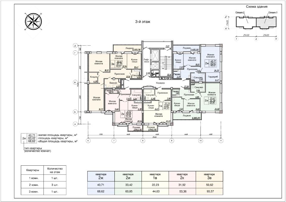
Со 2 по 16 этаж запроектированы 1-, 2-, 3-комнатные квартиры. Во всех квартирах предусмотрена полная планировка, организованы жилые комнаты, подсобные помещения, и лоджии (балконы). В каждой квартире одна жилая комната объединена с кухней (кухней-нишей) в единое пространство. Квартира строится и передается без выполнения чистовых отделочных работ. Высота потолков – не менее 2,65 м.

Оконные (балконные) блоки: ПВХ профиль, заполнение – двухкамерные стеклопакеты.

Дверные блоки (входные) – металлические.

Элементы остекления лоджий: профиль ПВХ.

Установка сантехнических приборов – унитаз.

Внутренняя отделка: полы – стяжка, стены и перегородки – улучшенная штукатурка, потолок без отделки.

В каждой секции жилого дома запроектирована одна лестничная клетка и два лифта: пассажирский грузоподъемностью 400 кг. и грузопассажирский грузоподъемностью 630 кг.

Комплексное благоустройство территории: устройство тротуаров с покрытием из мелкоразмерных бетонных плит, проезды и площадки из мелкоразмерной плитки, детская площадка, расстановка скамеек и урн, . Все участки, свободные от застройки, дорог и тротуаров, озеленяются путем устройства газона.

В состав общего имущества совместного домовладения по жилому дому входят: несущие, ограждающие ненесущие конструкции, межквартирные лестничные клетки, лестницы, лифты, коридоры, технический этаж, другие места общего пользования.

Планировки КВАРТИР

ГАРАЖ-СТОЯНКА

Ход строительства объекта

Cookie-файлы
Настройка cookie-файлов
Детальная информация о целях обработки данных и поставщиках, которые мы используем на наших сайтах
Аналитические Cookie-файлы Отключить все
Технические Cookie-файлы
Другие Cookie-файлы
Мы используем файлы Cookie для улучшения работы, персонализации и повышения удобства пользования нашим сайтом. Продолжая посещать сайт, вы соглашаетесь на использование нами файлов Cookie. Подробнее о нашей политике в отношении Cookie.
Принять все Отказаться от всех Настроить
Cookies